Stud Wall

(Revised 04/22/2024)

Panel Assembly

Section Profiles

Tooling Operations

Stud Wall Members

Standard Parts

Connections

 

Panel Assembly <<

              A drawing of a wall

Description automatically generated

 

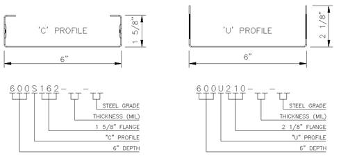
Sections Profiles <<

A close-up of a diagram

Description automatically generated

         A white rectangular sign with black text

Description automatically generated

 

 

Tooling Operations <<

A black and white drawing of a diagram

Description automatically generated with medium confidence

 

Stud Wall Members <<

 

 

A drawing of a metal beam

Description automatically generated with medium confidence

 

 

 

 

 

 

Standard Parts <<

Standard Clips:

A diagram of a rectangular object

Description automatically generated with medium confidence

 

A drawing of a metal piece

Description automatically generated

       

              

 

 

Standard Fasteners:

 

A close-up of a computer screen

Description automatically generated

 


 

Connections <<

@ Sidewall:

A drawing of a beam

Description automatically generated with medium confidence

@ Endwall:

A close-up of a white background

Description automatically generated